Consultant: Cubeinside Design Limited
Year: 2018 - 2024
Status: Completed
Land Area: 36981 sqm
Built Area: 41463 sqm +3 basements (81379 sqm)
Key Role: Associate Architect
Responsibilities: Layout design, Elevation design, 3D modelling, Client meeting, Presentation drawings, Co-ordinating with other consultants, Construction supervision including site visit, material research, Interior design in preliminary level
Year: 2018 - 2024
Status: Completed
Land Area: 36981 sqm
Built Area: 41463 sqm +3 basements (81379 sqm)
Key Role: Associate Architect
Responsibilities: Layout design, Elevation design, 3D modelling, Client meeting, Presentation drawings, Co-ordinating with other consultants, Construction supervision including site visit, material research, Interior design in preliminary level
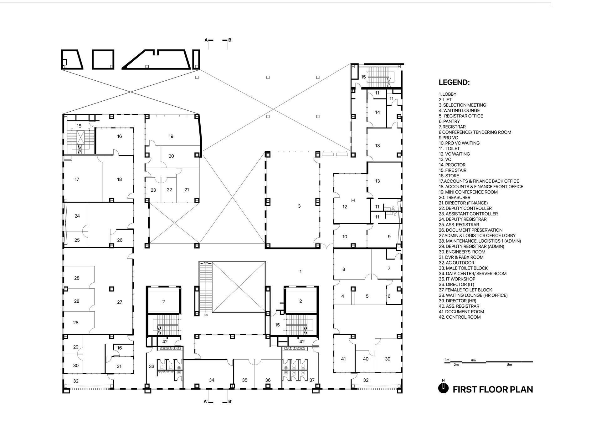
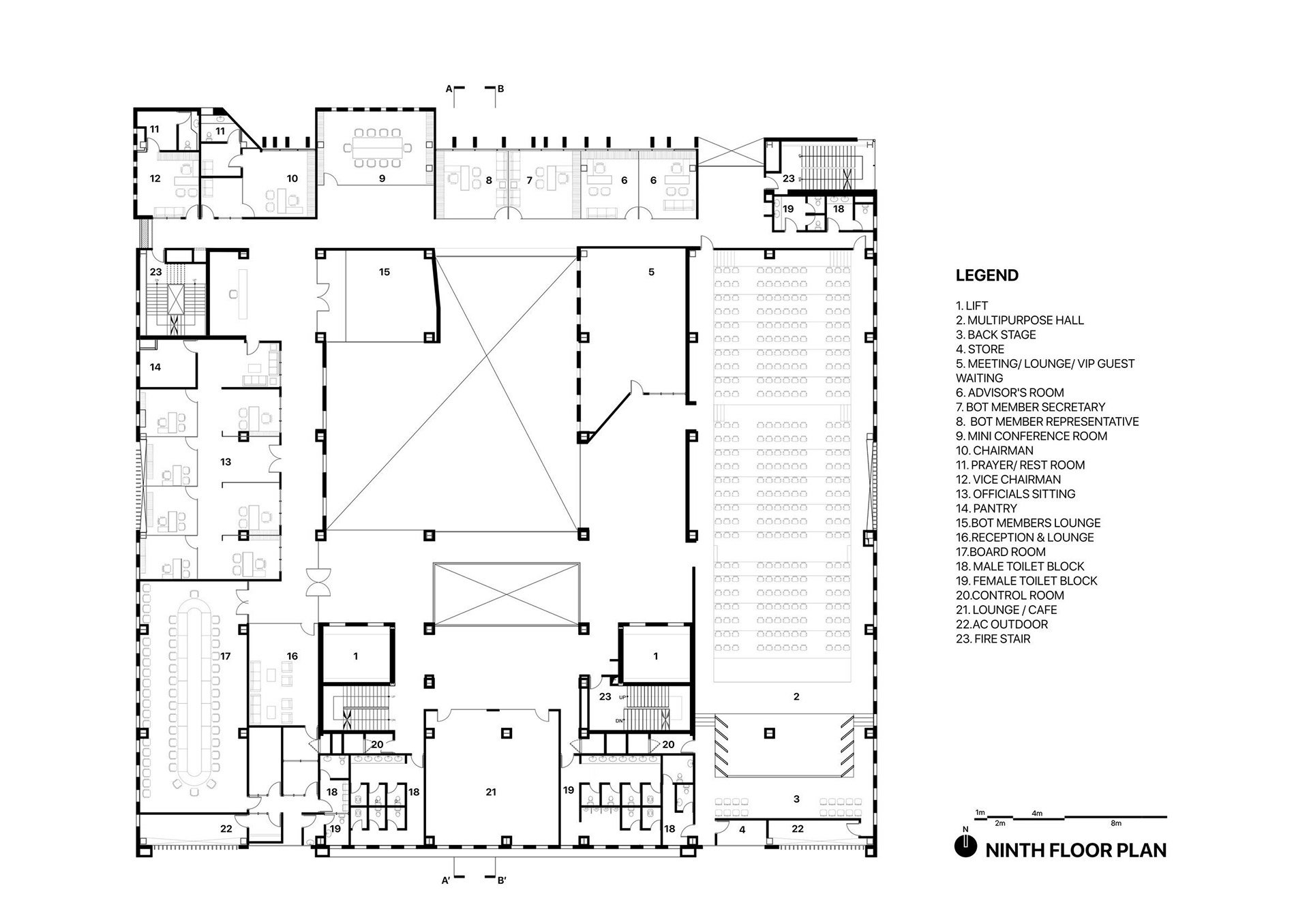
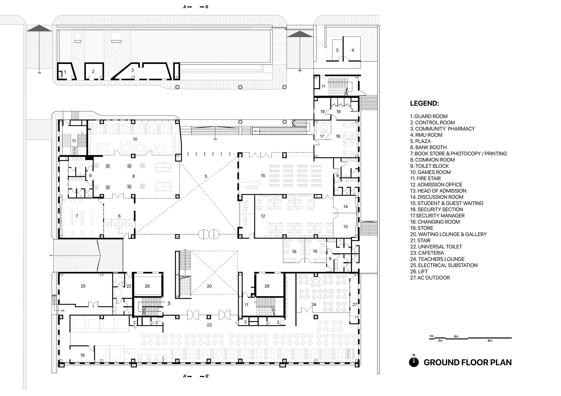
This is the main campus for Southeast University in Tejgaon, one of the busiest commercial areas of Dhaka. This will accommodate 6000 students. A ten storied building with a central atrium ensuring plenty of natural light. Using a central courtyard-based design creates a heart for the campus and lets student have a common space to interact. The elevations are designed in a way that breaks the gigantic scale of the building and all the classrooms, corridors and common spaces remain lighted. Layout is designed according to the university requirement and considering easy circulation, access, proper zoning, university policy, safety and security.
Credit: Cubeinside Design Ltd.
Credit: Cubeinside Design Ltd.